Studio Complex Residential Housing Design

Foundation Studio, Summer 2017 under Professor Luis Pancorbo

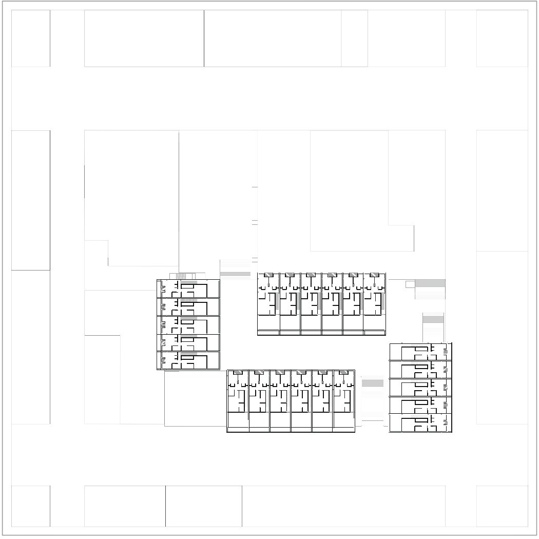
The Studio Complex is a mixed use residential housing development which attempts to alleviate the programmatic disparity between old downtown Lynchburg and the recent renovated waterfront. Sitting atop an existing parking garage on the block between 10th and 11th Street, the complex provides a new circulatory method that not only provides additional housing and commercial space but introduces a pedestrian-friendly pathway between the historic and the contemporary.

Parking Lot Area Distribution

The city of Lynchburg, Virginia is in a state of transition. Its makeup remains strongly divided between its identities of history and a necessity to thrive economically. This is primarily evident in the disparity between Main Street and Jefferson Street - the former represents its original role as the center for commercial activity within the city and the latter has taken form as the newly forming competition for retail and entertainment.

Dividing these streets is Commerce Street – a road primarily lined with empty parking garages, originally intended to serve consumers shopping on Main Street. Currently, Commerce Street acts solely as a means of navigation through Lynchburg’s urban environment.

Building Footprints

Aggregate Site Plan